下水道を正しく使うために
みんなで使う下水道です。大切に正しく使いましょう!
下水道が使えるようになっても、何でも流せるわけではありません。
間違った使い方をすると、下水道の処理機能が低下し、生活環境が悪化します。
快適な生活環境を守るため、下水道を正しく使いましょう。
油類を流さない
排水口に油を流すと冷えて固まるため、宅地内の汚水管や道路内の下水道管がつまる原因になります。
使った油は新聞紙などで吸い取り、燃えるごみに出しましょう。
水に溶けないものを流さない
野菜くずや食べ残し、紙オムツや衛生用品などの水に溶けないものを流すと、汚水管やトイレがつまる原因になります。
水気をよく切ったり、分別したりして、ごみとして処理しましょう。
薬品類を流さない
薬品類を流すと汚水管が変形するため、水漏れをおこしたり、つまる原因になったりします。
洗剤を使うときは注意事項を守りましょう。
また、薬品は廃棄方法を確認し、適切な方法で処分しましょう。
髪の毛を流さない
髪の毛を流すと、汚物と絡まって汚水管がつまる原因になるほか、下水処理場の運転に支障があります。
排水口で取り除くようにして、髪の毛を流さないようにしましょう。
熱湯を流さない
汚水管は熱に弱い材質が使われているため、汚水管が変形して水漏れをおこしたり、つまる原因になったりします。
熱湯は冷ましてから流すようにしましょう。
雨水を流さない
さくら市の下水道は汚水と雨水を別々に流す分流式を採用しています。
そのため、汚水管に雨水を流すことはできません。
もし、下水処理場の処理能力を超えた水量が流入すると、処理機能が低下したり、汚水があふれたりします。
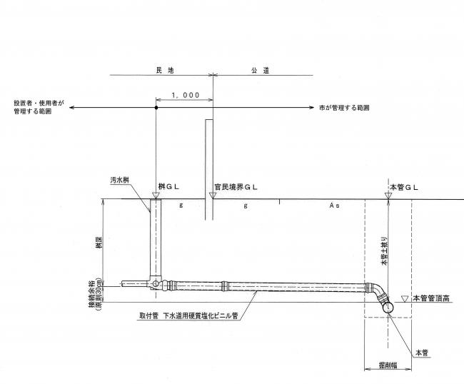
宅地内の排水設備(汚水管・ます)は、建物と同様に設置した方の財産です。
市が管理するのは、下水処理場から宅地内の公共汚水ますまでです。
宅地内の公共汚水ますから建物の中までは、設置・利用する方に管理をお願いいたします。
宅地内で汚水管がつまったり、汚水ますのふたが壊れたりしたときは、排水設備業者に直していただくことをお勧めいたします。
汚水管・ますの清掃については、どの排水設備業者でも行うことができます。
しかし、汚水管・ますの入れ替えなどを行う場合には、市が指定した「排水設備指定工事店」でなければ工事を行うことができませんので、指定工事店にお問い合わせください。
なお、排水設備業者・指定工事店にご依頼される場合には、何社かの見積書をとり、金額を比べることをお勧めいたします。







