【R7-3・空き家】氏家 500万円 250.04m2 物件の詳細を見る 価格 500万円 中古戸建 所在地 氏家 交通 JR東北本線 氏家駅から徒歩5分、300m 築年月 構造 木造 階建 地上2階 面積 250.04m2 建ぺい率/容積率 60%/200% 物件番号 R7-3 設備・条件
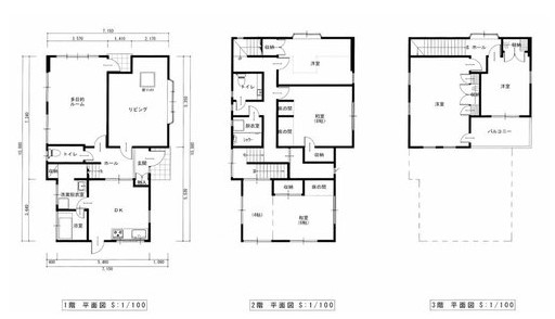
【R7-4・空き家】櫻野 1,480万円 149.22m2 物件の詳細を見る 価格 1,480万円 中古戸建 所在地 櫻野 交通 JR東北本線 氏家駅から徒歩10分、650m 築年月 構造 鉄筋造 階建 地上3階 面積 149.22m2 建ぺい率/容積率 60%/200% 物件番号 R7-4 設備・条件
【R7-8・空き家】氏家 1,980万円 248.00m2 物件の詳細を見る 価格 1,980万円 中古戸建 所在地 さくら市馬場 交通 JR東北本線 氏家駅から徒歩20分 築年月 2000/09 構造 木造 階建 地上2階 面積 248.00m2 建ぺい率/容積率 60%/200% 物件番号 R7-8 設備・条件